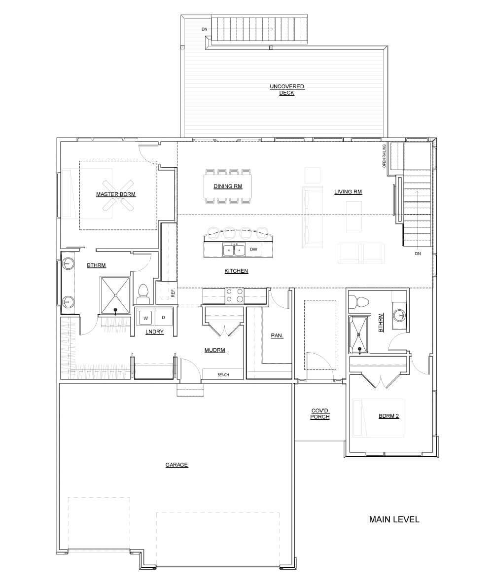
ALPINE PLAN
Beautiful plan featuring 4 bedrooms, 3 bathrooms, and a large walk-in pantry. This plan has large windows throughout both floors brining in tons of natural light. Also has a cool corner staircase feature with a full stone fireplace surround making it the center of attention. Basement has 2 more bedrooms and a full wet bar perfect for entertaining. Dont forget about the 10’ wide and 8’ tall triple sliding door that leads you out to the covered patio.
Features
12x12 Covered deck with a 15x12 uncovered portion
Large walk-in pantry
Electric fireplace in great room with open staircase behind it
Large windows thruout
Modern touches inside and out
